Transport w odległości DO 100km od siedziby firmy.
Koszty dostawy wybranego produktu
-
odbiór osobisty Darmowa
odbiór w siedzibie lub oddziale firmy
-
TRANSPORT ROKAD WARSZAWA 220,00 zł
Transport w odległości DO 100km od siedziby firmy.
-
TRANSPORT ROKAD KATOWICE 220,00 zł
Transport w odległości DO 100km od odziału firmy.
-
TRANSPORT INDYWIDUALNY 420,00 zł
Transport w odległości OD 100km DO 150km od siedziby lub oddziału firmy.
-
TRANSPORT INDYWIDUALNY 630,00 zł
Transport w odległości OD 150km DO 200km od siedziby lub oddziału firmy.
-
TRANSPORT INDYWIDUALNY 850,00 zł
Transport w odległości OD 200km DO 380km od siedziby firmy.
Cena dostawy dotyczy tego produktu (w wybranym wariancie - jeśli dotyczy). Może się ona zmienić po dodaniu innych produktów do koszyka.
Kod produktu: 8000130
Opis
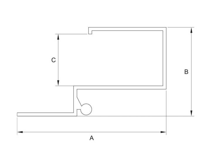
Profil aluminiowy przegubowy do poliwęglanu komorowego o grubości 16mm.
Podana cena dotyczy odcinka o długości 6m.
Wymiary (A x B x C): 66,8x35,6x18mm
Profil przegubowy tak jak i profil zamykający F służy do zamknięcia otwartych komór na płycie poliwęglanowej. Różnicą między nimi jest to, że przy profilu przegubowym te zamknięcie jest pod różnym kątem.

Do profilu przegubowego niezbędna jest listwa przegubowa (kliknij w obrazek by przejść):
Cechy produktu
Profile aluminiowe
- Grubość 16mm
- Długość 6mb
- Kolor Surowe aluminium
- Zastosowanie Przegub
